62


Country Club

 

Deerfield Academy

   

Demo Units

   

Finished Walls

 

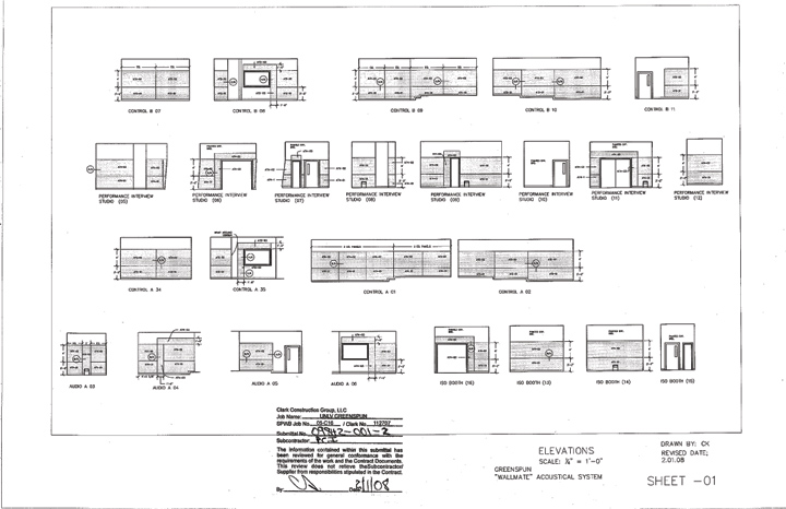
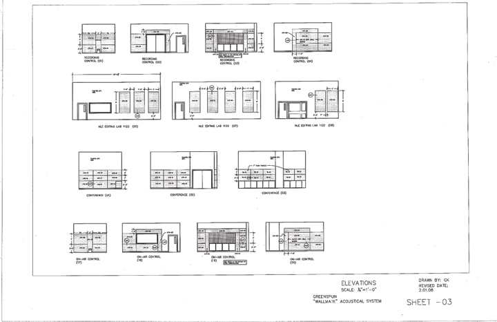
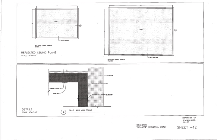
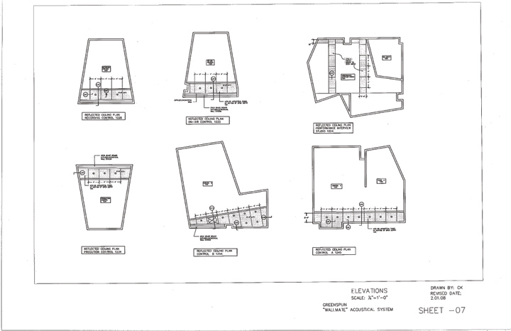
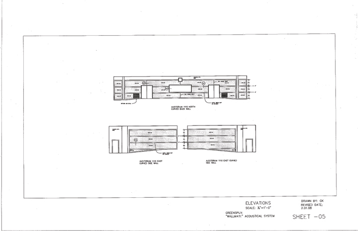
Green Spun

 

Green Spun Shop Drawings

 

Section Details

 

Track Positions


UNLV Moot Court


Home Theatre